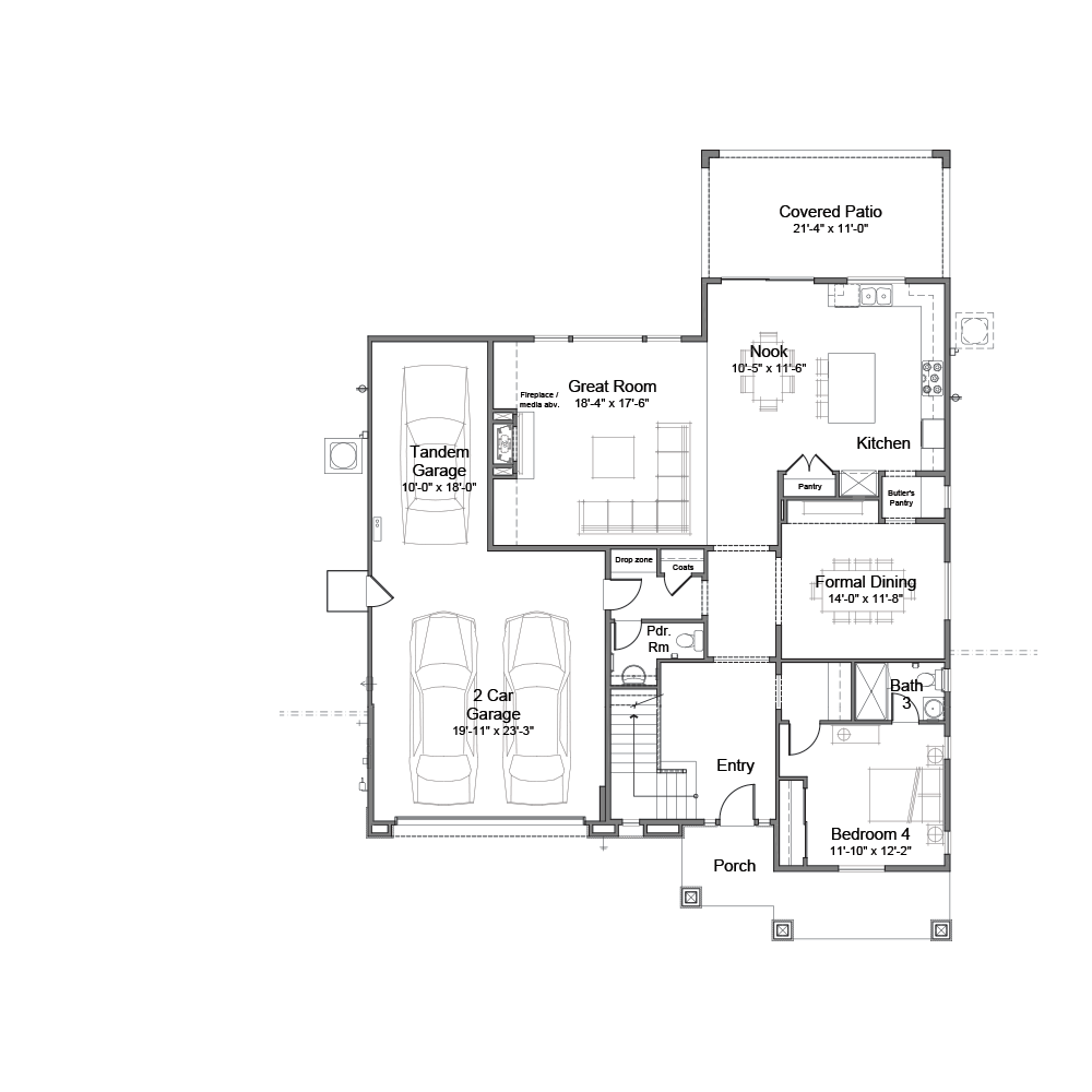
New Floorplan in Brentwood, CA Plan 2

  • 4
    Beds
  • 3.5
    Baths
  • 3,490
    Square Feet
Please Call for Pricing
<% activeTitle %>

Floorplans

  • First Floor
  • Second Floor
First Floor Second Floor